|
首頁-水環式真空泵型號-SZB型水環式真空泵SZB型水環式真空泵
一、SZB型水環式真空泵概述:
SZB型水環式真空泵,可供抽吸空氣或其它無腐蝕性不溶于水的、不含固體顆粒的氣體。最高真空度可達85%,特別適合于做大型水泵引水用。
目前制造的本型泵有:SZB-4, SZB-8。其中4 (8)表示當水銀柱高為520毫米時的氣量(升/秒)。
二、SZB型水環式真空泵型號說明:

三、SZB型水環式真空泵結構說明:
1 |
泵蓋 |
3 |
葉輪 |
5 |
填料壓蓋 |
7 |
滾珠軸承 |
9 |
葉輪平健 |
11 |
填料環 |
13 |
法蘭盤 |
2 |
泵體 |
4 |
填料 |
6 |
托架 |
8 |
聯軸器 |
10 |
泵軸 |
12 |
軸承壓蓋 |
14 |
聯軸器平健 |
SZB型水環式真空泵結構如圖一所示、工作室由泵體(2)、泵蓋(1)構成,上有進排氣口(詳見圖三),下有放水螺塞(15)(見圖三),泵蓋上有指示旋轉方向的箭頭,泵體有填料函和填料壓蓋(5),內裝填料(4)密封,泵體側面的螺絲孔(16)(見圖三)為補充水環消耗用水。 由鑄鐵制成葉輪(3),有12個葉片呈放射狀均分布,有平衡孔(其中兩個套扣供拆卸用)平衡軸向力。葉輪平鍵(9)與軸(10)聯接并可沿軸向滑動調節間隙。軸為優質鋼制成,支承在泵的托架((6)內的兩個滾珠軸承(17)上,右端有彈性聯軸器(8)和電機直接聯接。托架(6)用鑄鐵制成,有止口保證與泵體準確聯接,軸承間有空腔,可存潤滑油,用稀油或黃油滑均可。從傳動方向看,泵軸為逆時針方向旋轉(右邊法蘭為排氣口,左邊法蘭為進氣口)。
四、SZB型水環式真空泵工作性能:
型 號 |
排氣量Q |
毫米汞柱(mmHg) |
最大真空 度 |
轉數
(r/min) |
電機功率(kw) |
口徑 |
泵重(kg) |
m3/h |
L/S |
|
|
|
|
吸入 |
吐出 |
|
SZB-4 |
19.8 |
5.5 |
440 |
80% |
1450 |
1.5 |
ZG1" |
ZG1" |
42 |
14.4 |
4 |
520 |
7.2 |
2 |
600 |
0 |
0 |
650 |
SZB-8 |
38.2 |
10.6 |
440 |
80% |
1450 |
2.2 |
ZG1" |
ZG1" |
45 |
28.8 |
8 |
520 |
14.4 |
4 |
600 |
0 |
0 |
650 |
五、SZB型水環式真空泵性能曲線圖:

圖二:SZB型水環式真空泵性能曲線圖
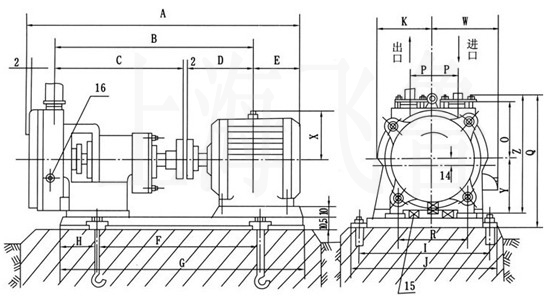
六、SZB型水環式真空泵安裝尺寸圖:

圖三:SZB型水環式真空泵安裝尺寸圖
型號 |
A |
B |
C |
D |
E |
F |
G |
H |
I |
J |
K |
Y |
Z |
W |
R |
Q |
P |
O |
X |
配用電機 |
SZB-4 |
755 |
504.5 |
313 |
175.5 |
122 |
390 |
640 |
125 |
310 |
360 |
120 |
135 |
274 |
155 |
187 |
359 |
55 |
121 |
145 |
Y90L-4-1.5KW |
SZB-8 |
780 |
523 |
313 |
208 |
139 |
393 |
660 |
133 |
345 |
385 |
120 |
135 |
274 |
155 |
187 |
369 |
55 |
121 |
145 |
Y100L1-4-2.2KW |
七、SZB型水環式真空泵安裝說明:
設備須根據圖三進行安裝
1.真空泵用來作水泵引水用時,其安裝位置與水泵之間距離要寬敞一些,以便水泵和真空泵檢修時方便。
2.真空泵的吸氣管道不可有漏氣現象。其地基尺寸以安裝圖或以實物測量進行施式。 3.真空泵軸與電機軸須保持水平,不允許有不同心的現象(詳見圖四)。基礎必須結實可靠。灌入水泥后,干至48小時,重新檢查安裝是否有變化,然后將底腳螺栓擰緊,不可有松動現象。
4.如須安裝汽水分離器時可參看圖五。

圖四:電機與泵同心度的校正

圖五:汽水分離器的安裝
八、SZB型水環式真空泵使用維護說明: 1.真空泵啟動前,須檢查電機旋轉方向是否與泵的旋轉方向相符。軸承運轉、潤滑是否正常.并檢查填料壓緊程度是否適當,填料不能壓得過緊。正常壓緊的填料能夠使泵中的水成滴地向外漏出。取油浸過的石棉繩做姨料,然后從泵上的冷卻管(接在泵體側面的螺絲孔(16)上),灌入冷卻水,有汽水分離器者從汽水分離器灌入,并檢查吸氣管路連接是否嚴密后方可開啟泵。
2.真空泵在正常運轉時,須觀察是否有振動,細聽泵內是否有雜聲,并側定填料函和軸承溫度(正常軸承的溫度不得比環境溫度高出350 C,’但工作溫度不得超過70℃)。如果溫度超高,應立即停車檢查原因。
3.真空泵作為水泵真空引水用時,其運轉期間將水泵內的空氣全部吸出,直到將水泵內吸出水來以后,即開動水泵,待水泵正常工作后將真空泵停車,并將吸氣管路的截門關閉。
4.真空泵停車以后,將泵體內的水放凈,尤其是冷凍季節更要注意,以免使泵凍裂。如果準備長期停用.最好拆開泵的全部零件擦干,將轉動部位涂上黃油或防鑄油脂,再重新裝好,并將吸入口和排出口塞上一木塞,放里在較干澡的地方保存。
相關產品推薦:
2BV型水環式真空泵 2BEC型水環式真空泵 2SY型水環式真空泵 SK直聯型水環式真空泵
SKF型水環式真空泵 |